Alzone Ground Mount Racking




ALZONE Ground Mount Kits include cross bracing and struts for additional array strength. The angle of the array may be altered with different leg lengths, and kits are available from 15° to 45° kits.
Need a quote for racking click here
Compliance Certificate
- AS/NZS 1170.0
- AS/NZS 1170.1
- AS/NZS 1170.2
- AS/NZS 1664.1
Wind and Zoning
GROUND MOUNT KIT for ZONE A
Alzone racking kits are designed for the lighter wind loads
These kits come supplied with slightly different feet and have different footing requirements to Cyclone rated framing.
All aluminium rail sections and components are anodized for improved appearance and increased durability.
Stainless steel bolts, nuts and washers are supplied as standard in these kits.
Kits are pre drilled for ease of assembly.
All anodized clamps & stainless steel bolts for securing solar modules are included with kits.
Array angles of 15 to 45 degrees are available.
Compliance Certificate
- AS/NZS 1170.0 - STRUCTURAL DESIGN ACTIONS: GENERAL PRINCIPALS
- AS/NZS 1170.1 - STRUCTURAL DESIGN ACTIONS: PERMANENT, IMPOSED AND OTHER ACTIONS
- AS/NZS 1170.2 - STRUCTUTAL DESIGN ACTIONS: WIND ACTIONS
- AS/NZS 1664.1 - ALUMINIUM STRUCTURES: LIMIT STATE DESIGN

*Maximum number of panels per frame depends on panel dimensions, tilt angle and wind region
GROUND MOUNT for ZONE B, C & D
Alzone racking kits for zone B, C & D (cyclonic areas) feature extra centre leg supports along with additional bracing.
These are the strongest of the ground mounts and have stronger footing requirements.
All aluminium rail sections and components are anodized for improved appearance and increased durability.
Stainless steel bolts, nuts and washers are supplied as standard in these kits.
Kits are pre drilled for ease of assembly.
All anodized clamps & stainless steel bolts for securing solar modules are included with kits.
Array angles of 15 to 45 degrees are available.
Racking is component and system engineer certified.
Compliance Certificate
- AS/NZS 1170.0 - STRUCTURAL DESIGN ACTIONS: GENERAL PRINCIPALS
- AS/NZS 1170.1 - STRUCTURAL DESIGN ACTIONS: PERMANENT, IMPOSED AND OTHER ACTIONS
- AS/NZS 1170.2 - STRUCTUTAL DESIGN ACTIONS: WIND ACTIONS
- AS/NZS 1664.1 - ALUMINIUM STRUCTURES: LIMIT STATE DESIGN

*Maximum number of panels per frame depends on panel dimensions, tilt angle and wind region
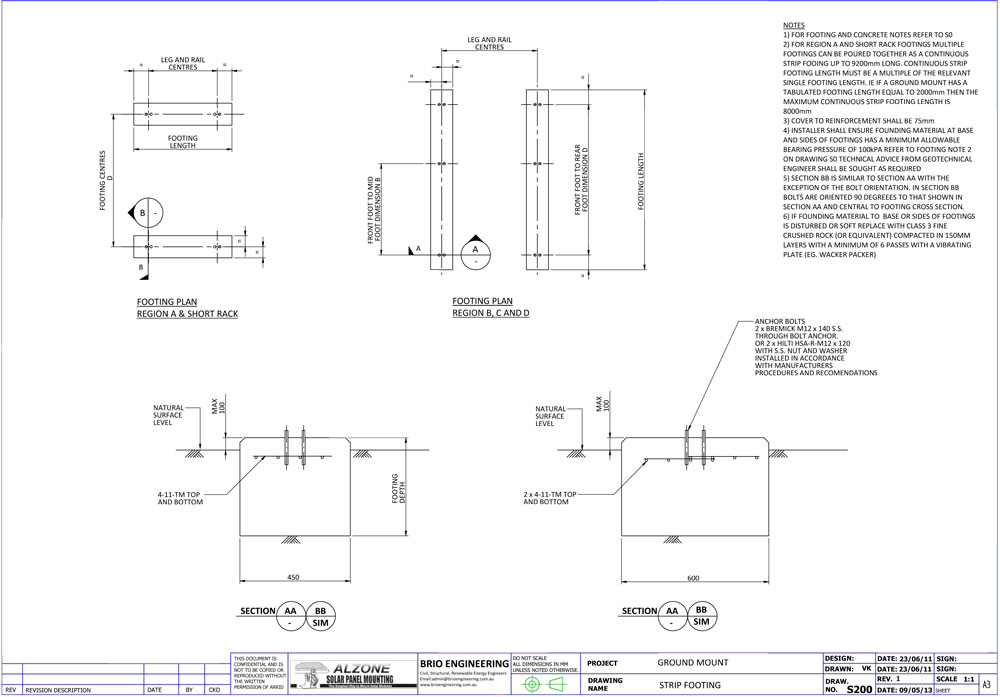
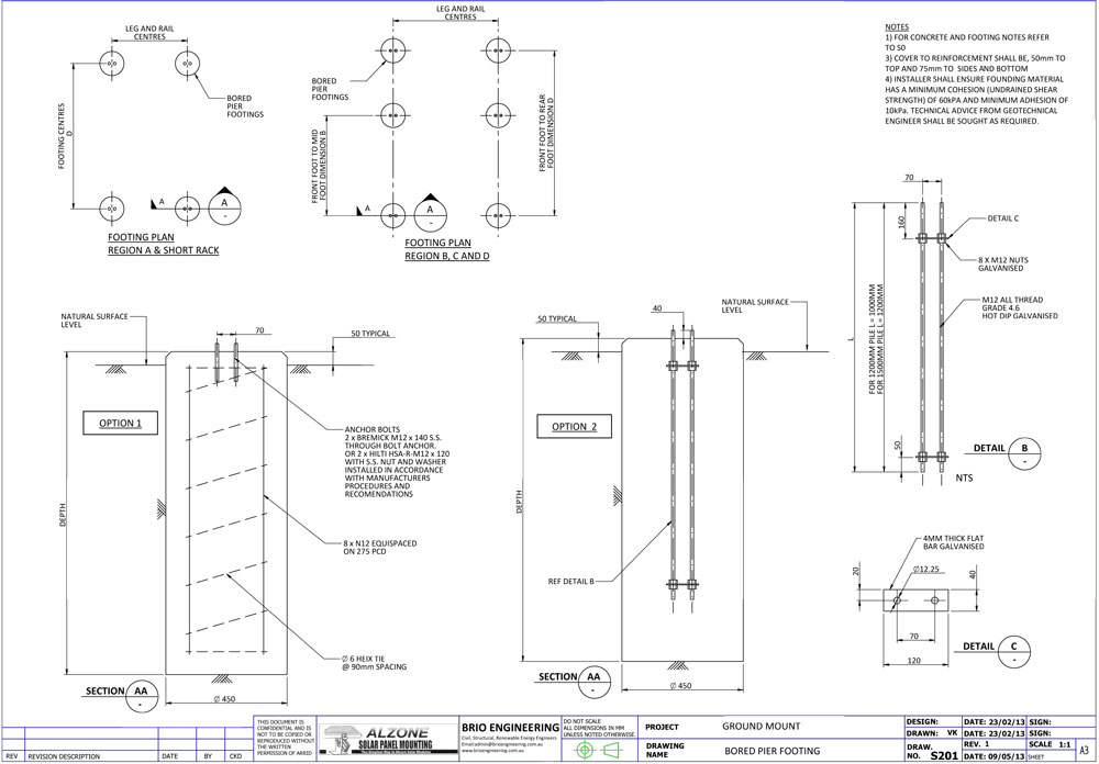
CONCRETE AND FOOTING REQUIREMENTS



